Listing Tools

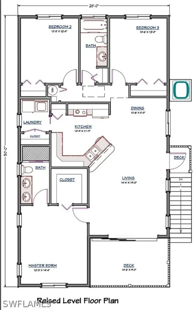
Wonderful location!!!- Just 3 lots in from Estero Drive and a short stroll to direct beach access! Amazing opportunity to build your dream home in paradise and enjoy the white sugar-sand beaches in this coastal oasis. WEEKLY RENTALS makes this a great investment opportunity! Seller previously worked with Woodland Homes to potentially rebuild. *See Woodland Homes Bermuda Conceptual Renderings in the photos for more details. We have the expertise and resources to help you build your tropical oasis. From trusted builder introductions to financing options, insurance providers, and more - we're here to guide you every step of the way. Be part of rebuilding this special place and enjoy all that Fort Myers Beach has to offer. Mid-Island location is close to town square and the grocery store. Owner has a SURVEY on file. Lot size is 50'x96.95'.

Property Details

Exterior Features

Community

Map Location

Listed by Beth Barton of Coastal Brokerage LLC

Based on information submitted to Gulf Coast as of November 19, 2025 . All data is obtained from various sources and has not been, and will not be, verified by broker or Gulf Coast.  All information should be independently reviewed and verified for accuracy. Properties may or may not be listed by the office/agent presenting the information. NOTICE: Many homes contain recording devices, and buyers should be aware they may be recorded during a showing.

Hi there! How can we help you?

Contact us using the form below or give us a call.

Send Us A Message:

I agree to be contacted by Christianne Payne Arthur, P.A. via call, email, and text for real estate services. To opt out, you can reply ‘stop’ at any time or reply ‘help’ for assistance. You can also click the unsubscribe link in the emails. Message and data rates may apply. Message frequency may vary. Privacy Policy.

Do not fill in this field:

This site is protected by reCAPTCHA and the Google Privacy Policy and Terms of Service apply.

Hi there! How can we help you?

Contact us using the form below or give us a call.

Send Us A Message:

Do not fill in this field:

This site is protected by reCAPTCHA and the Google Privacy Policy and Terms of Service apply.

Hi there! How can we help you?

Contact us using the form below or give us a call.

Send Us A Message:

Do not fill in this field:

This site is protected by reCAPTCHA and the Google Privacy Policy and Terms of Service apply.

Do not fill in this field:

This site is protected by reCAPTCHA and the Google Privacy Policy and Terms of Service apply.

Do not fill in this field:

This site is protected by reCAPTCHA and the Google Privacy Policy and Terms of Service apply.

Do not fill in this field:

This site is protected by reCAPTCHA and the Google Privacy Policy and Terms of Service apply.

$

Do not fill in this field:

This site is protected by reCAPTCHA and the Google Privacy Policy and Terms of Service apply.