Listing Tools

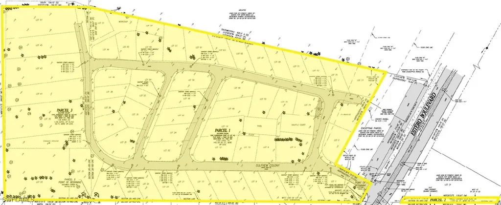
Price reduced nearly 40% for Immediate Sale. The former Gulf View Colony mobile home park represents a rare and unique opportunity for redevelopment in the heart of Fort Myers Beach. With private road access directly onto Estero Boulevard, 1 mile away from the new Margaritaville Beach Resort, and deeded beach access directly across the street, this 4.627 acre site is exceptionally well located. This opportunity is priced based on in-place entitlements for single-family and two-family residential use with no rezoning required. Download the Offering Memorandum or contact listing broker for complete details.

Property Details

Exterior Features

Community

Map Location

Listed by Ryan Batey of Premier Sotheby's Int'l Realty

Based on information submitted to Gulf Coast as of November 19, 2025 . All data is obtained from various sources and has not been, and will not be, verified by broker or Gulf Coast.  All information should be independently reviewed and verified for accuracy. Properties may or may not be listed by the office/agent presenting the information. NOTICE: Many homes contain recording devices, and buyers should be aware they may be recorded during a showing.

Hi there! How can we help you?

Contact us using the form below or give us a call.

Send Us A Message:

I agree to be contacted by Christianne Payne Arthur, P.A. via call, email, and text for real estate services. To opt out, you can reply ‘stop’ at any time or reply ‘help’ for assistance. You can also click the unsubscribe link in the emails. Message and data rates may apply. Message frequency may vary. Privacy Policy.

Do not fill in this field:

This site is protected by reCAPTCHA and the Google Privacy Policy and Terms of Service apply.

Hi there! How can we help you?

Contact us using the form below or give us a call.

Send Us A Message:

Do not fill in this field:

This site is protected by reCAPTCHA and the Google Privacy Policy and Terms of Service apply.

Hi there! How can we help you?

Contact us using the form below or give us a call.

Send Us A Message:

Do not fill in this field:

This site is protected by reCAPTCHA and the Google Privacy Policy and Terms of Service apply.

Do not fill in this field:

This site is protected by reCAPTCHA and the Google Privacy Policy and Terms of Service apply.

Do not fill in this field:

This site is protected by reCAPTCHA and the Google Privacy Policy and Terms of Service apply.

Do not fill in this field:

This site is protected by reCAPTCHA and the Google Privacy Policy and Terms of Service apply.

$

Do not fill in this field:

This site is protected by reCAPTCHA and the Google Privacy Policy and Terms of Service apply.